Sanjusan TATSU ― 在宽敞空间中休憩的静谧京都秘境。
配备三间卧室与两间浴室的舒适现代整栋出租屋。
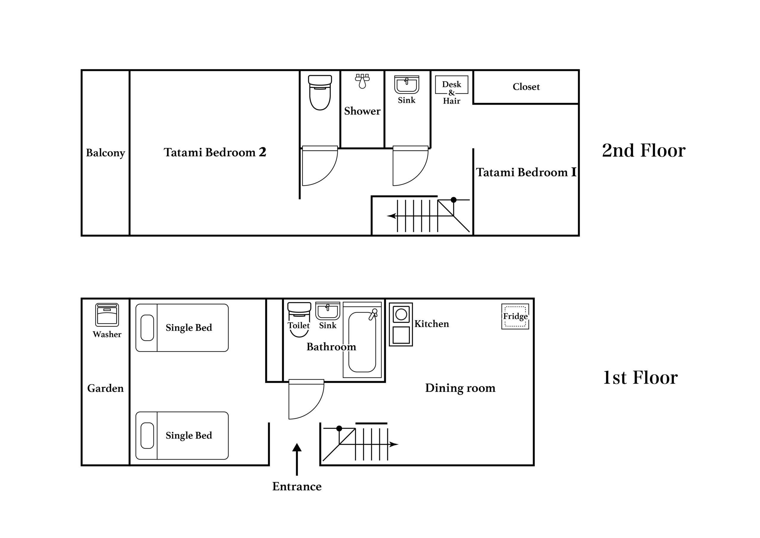
Sanjusan TATSU是位于京都站南区域·西九条的两层独栋民宿。
配备三间宽敞卧室与两间浴室,
可从容接待家庭或团体旅行宾客。
一楼设有独立西式卧室及带浴缸的浴室,二楼配备两间榻榻米卧室、淋浴间及独立卫生间。空间设计将时尚美学与和风静谧完美融合。
观光一日后,请在静谧町屋中享受悠闲时光。体验“如居家般入住”的京都魅力。
Sanjusan TATSU是位于京都站南区域·西九条的两层独栋民宿。
配备三间宽敞卧室与两间浴室,
可从容接待家庭或团体旅行宾客。
一楼设有独立西式卧室及带浴缸的浴室,二楼配备两间榻榻米卧室、淋浴间及独立卫生间。空间设计将时尚美学与和风静谧完美融合。
观光一日后,请在静谧町屋中享受悠闲时光。体验“如居家般入住”的京都魅力。
・ 可容纳8人的宽敞整栋包租民宿
・ 配备3间卧室与2间浴室的舒适设计
・ 毗邻京都站的静谧住宅区,安心入住

【设施・用品】
Wi-Fi/电视/空调(冷暖两用・暖炉)/浴室(带浴缸)/淋浴间/独立卫生间×2/简易厨房/冰箱/微波炉/电热水壶/洗衣机(阳台)/餐具/吸尘器/榻榻米空间/用餐区
【容纳人数・清洁费】
入住人数:最多8位(1位起可整栋包租)
清洁费:统一收取10,000日元
【交通指南】
〒601-8431 京都府京都市南区西九条岛町4-9
京都站步行20分钟
【补充说明】
本设施为取得简易住宿经营许可的整栋出租房屋(全年365天运营)。
符合法律规定的安全标准,全年皆可安心入住。
【品牌理念】
Sanjusan(三十三)承袭京都三十三间堂精神,将“33”融入品牌标识,致力于打造传统与环境和谐共生的整栋出租旅宿。
在宁静悠然的氛围中,为您呈现“京都生活体验”的难忘旅程记忆。
【交通指南】
〒601-8431 京都府京都市南区西九条岛町4-9
京都站步行20分钟
发布的信息基于当前周边区域地图,但内容不保证完全准确。请务必查看最新的当地信息。