Sanjusan MOKU

Sanjusan MOKU ― 感受木质温暖与惬意的整栋包租旅宿。

步行可达京都站。在宽敞的和风空间中,享受治愈时光。

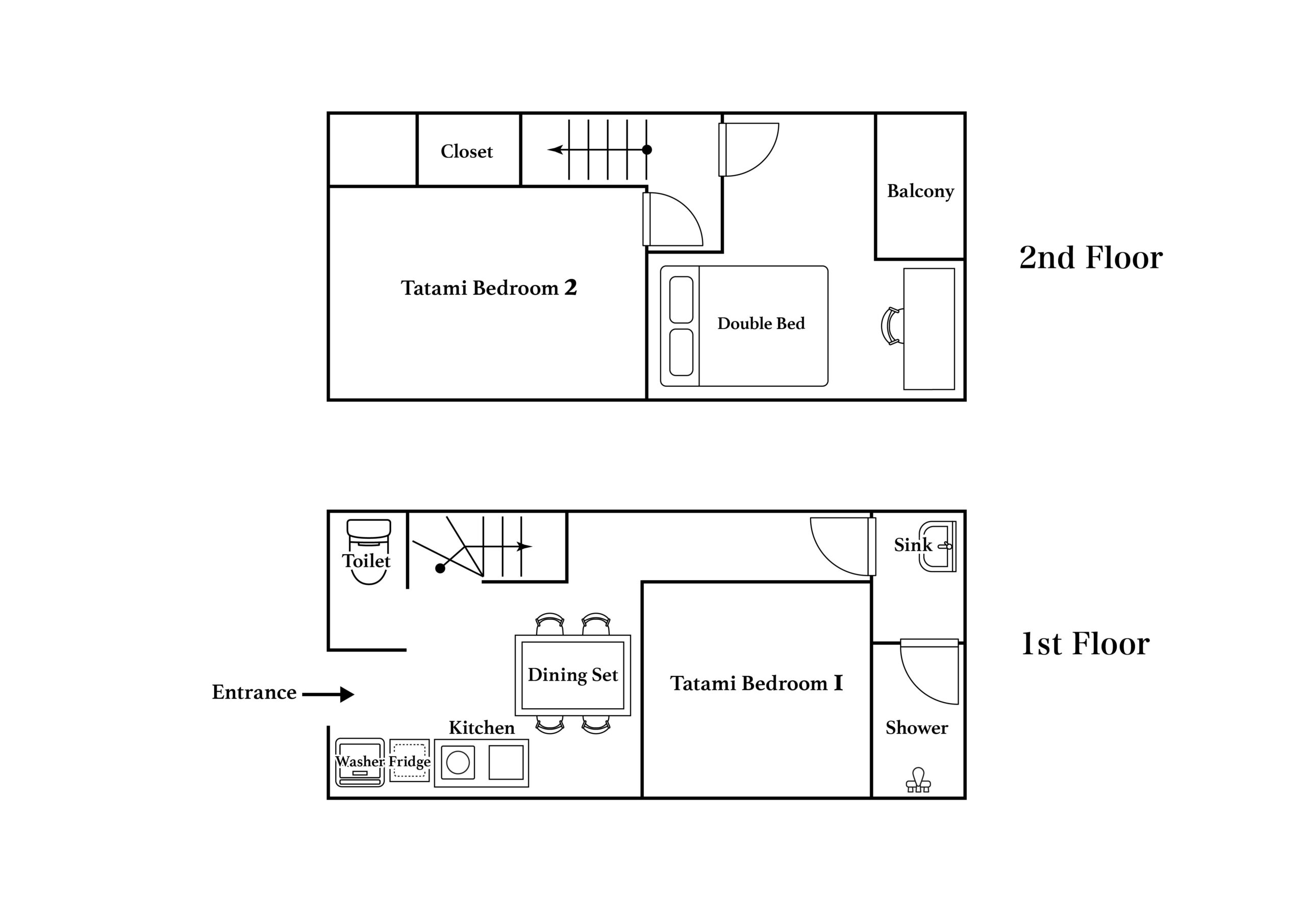
Sanjusan MOKU是位于京都站步行圈内的两层独栋民宿。
宽敞宁静的空间,最适合与家人朋友共度时光。
一层设有榻榻米厅与厨房,二层配备双人卧室及榻榻米区域,
最多可容纳7人舒适入住。
观光归来,不妨在这座静谧町屋中休憩身心。
木质的温润与柔和的灯光,将京都一日的时光温柔包裹。

特征

・京都站附近,适合团体/家庭旅行的宽敞空间
・传统与现代交融的两层町屋
・配备洁净舒适设施的环保型旅宿

设施详情

【设施·配套】
Wi-Fi/电视/空调(冷暖两用·暖炉)/独立卫浴/简易厨房/冰箱/微波炉/电热水壶/洗衣机/餐具/吸尘器/榻榻米区域/用餐区

【容纳人数·清洁费】
入住人数:最多5位(1位起可整栋包租)
清洁费:统一8,000日元

【交通指南】
〒601-8004 京都府京都市南区东九条东山王町3-5
京都站步行10分钟

【补充说明】
本设施依据《住宅住宿事业法》完成注册登记(年运营天数180天)。
严格遵循法规要求,提供安全舒适的居住环境。

【品牌理念】
Sanjusan(三十三)承袭京都三十三间堂精神,将“33”融入品牌标识,致力于运营注重传统与环境和谐的整栋出租旅宿。
在家人朋友的欢聚时光中,为您呈现“如京都居民般居住”的独特体验。

【SNS】

【交通指南】
〒601-8004 京都府京都市南区东九条东山王町3-5
京都站步行10分钟

周边信息

发布的信息基于当前周边区域地图,但内容不保证完全准确。请务必查看最新的当地信息。

观光

京都AVANTI购物中心
约300米/步行4分钟
京都塔
约900米/步行13分钟

便利店

罗森 竹田街道针小路店
约200米/步行3分钟

停車處

Concept八条口东停车场
约150米/步行2分钟

车站

JR「京都站」八条东口
约450米/步行7分钟

巴士站

京都站八条口
约350米/步行4分钟

预订