Sanjusan INARI

Sanjusan INARI ― 沉浸於和風舒適氛圍的伏見整棟出租民宿。

在寧靜住宅區,如生活般體驗京都。

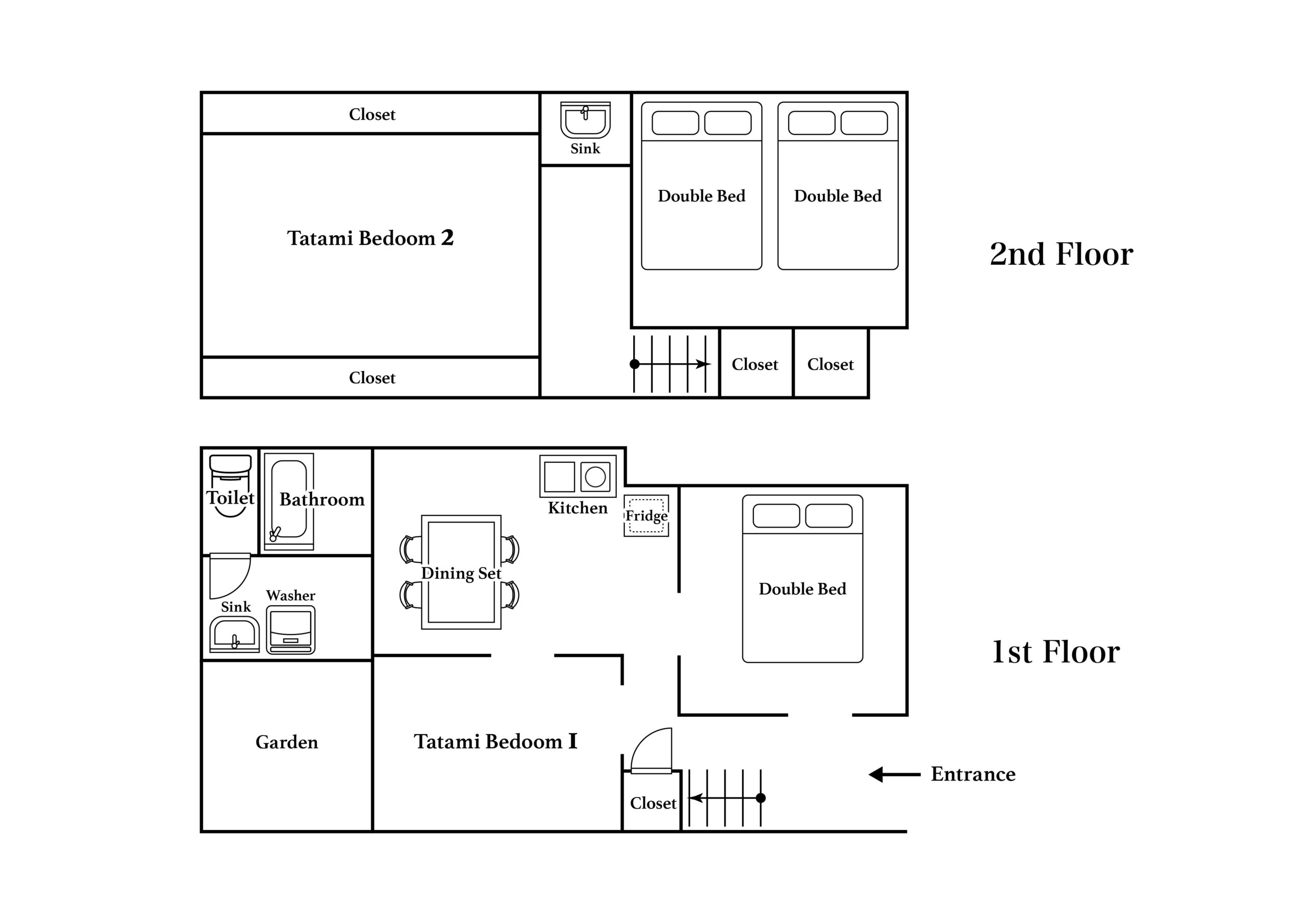
Sanjusan Inari坐落於京都市伏見區竹田寧靜住宅區,是一棟兩層樓的整棟出租民宿。
置身現代化街景之中,透過榻榻米與和風佈置,讓您不經意間感受日本美學。
雖非傳統町家建築,但憑藉不依賴繁複裝飾的簡約設計,以及重視溫馨感與機能性的空間規劃,成為能以親民價格體驗京都生活魅力的住宿選擇。
最多可容納5人的格局,最適合家庭或團體入住。請在寧靜環境中,享受悠閒時光。

特徵

・坐落於伏見區竹田靜謐住宅街的整棟出租民宿
・融入榻榻米的和風舒適空間
・適合家庭或團體使用的寬敞格局

設施詳情

【設備・備品】
Wi-Fi/電視/冷暖空調/浴室・廁所分離/廚房
冰箱/微波爐/熱水壺/洗衣機/餐具/吸塵器
榻榻米/床鋪

【容納人數・清潔費】
容納人數:最多5人
清潔費:統一收取10,000日圓(已含於房價)

【交通方式】
〒612-8415 京都府京都市伏見區竹田中島町2-28
京都站 → 鷺橋站(電車4分鐘)
鷺橋站 → 住宿處(步行3分鐘)

【補充說明】
本設施係依據《住宅住宿事業法》登記之住宿(全年營運180日)。
已建立符合法令規範之安全營運體制。

【品牌理念】
Sanjusan(三十三)秉持珍視京都生活與寧靜的信念,
悉心經營每間誠摯舒適的住宿空間。
我們致力於在您的旅程中營造「京都家的感覺」。

【SNS】

【交通方式】
〒612-8415 京都府京都市伏見區竹田中島町2-28
京都站 → 鷺橋站(電車4分鐘)
鷺橋站 → 住宿處(步行3分鐘)

週邊資訊

發布的資訊是基於目前週邊區域地圖,但內容不保證完全準確。請務必查看最新的當地資訊。

觀光

伏見稻荷大社
約1.5公里/步行22分鐘

便利商店

7-Eleven伏見竹田站前店
約300公尺/步行4分鐘

停車處

D Parking竹田中島町第2停車場
約200公尺/步行3分鐘

車站

地鐵鉤橋站
約190公尺/步行3分鐘

巴士站

竹田久保町
約290公尺/步行4分鐘

預訂