Sanjusan WAKA ― 和と華やぎが静かに調和する、下京の一棟貸し。
やわらかな光に包まれ、京都の時間をゆったりと味わう住まい。
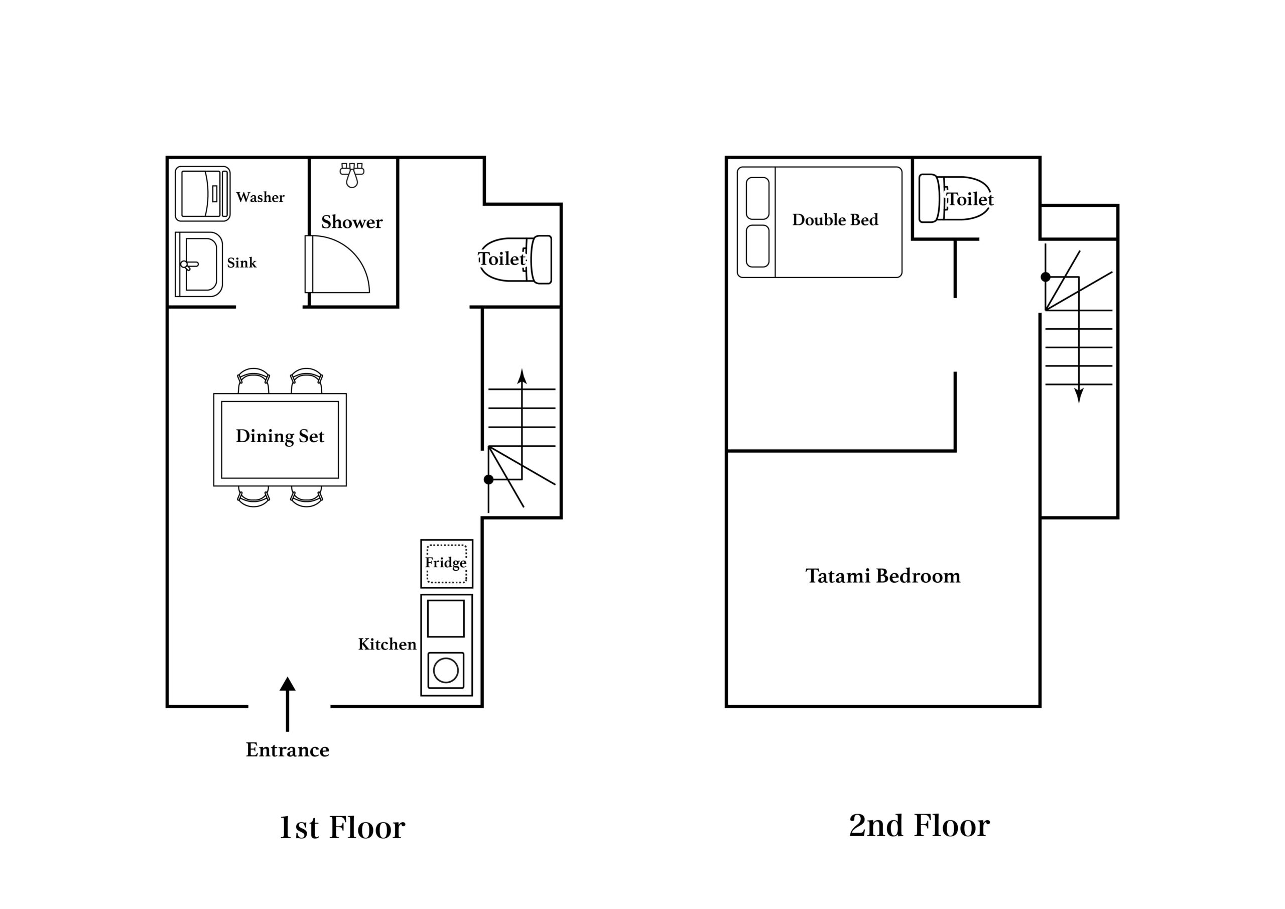
WAKAは、京都市下京区に位置する二階建て・60㎡の一棟貸し宿です。
最大5名まで宿泊可能で、少人数からご家族利用まで柔軟に対応できる間取りです。落ち着いた住宅街にありながら、観光拠点としても使いやすい立地にあります。
一階にはリビング、キッチン、シャワールーム、トイレを備え、機能的で使いやすい空間を整えました。
二階には畳の寝室(3名対応)とダブルベッドルーム(2名対応)をご用意し、多様な滞在スタイルに対応します。
和の落ち着きの中に、さりげない華やかさを添える空間。
観光のあと、静かに心を整える時間がここにあります。
京都の日常に溶け込むような滞在をお楽しみください。
