Sanjusan KUMO ― 静けさと利便性を備えた、京都の一棟貸し。
和の趣とモダンな快適さを備えた、落ち着いた一棟貸し宿。
Sanjusan KUMO は、京都市内へのアクセスに優れた立地にありながら、静かな住宅街に佇む一棟貸しの宿です。
主要エリアへの移動がしやすく、コンビニエンスストアまでは徒歩約3分。
利便性を備えつつ、滞在中は穏やかな時間をお過ごしいただけます。
街に近く、喧騒から距離を保つ。
京都での滞在を、無理なく、上質に整えた空間です。
Sanjusan KUMO は、京都市内へのアクセスに優れた立地にありながら、静かな住宅街に佇む一棟貸しの宿です。
主要エリアへの移動がしやすく、コンビニエンスストアまでは徒歩約3分。
利便性を備えつつ、滞在中は穏やかな時間をお過ごしいただけます。
街に近く、喧騒から距離を保つ。
京都での滞在を、無理なく、上質に整えた空間です。
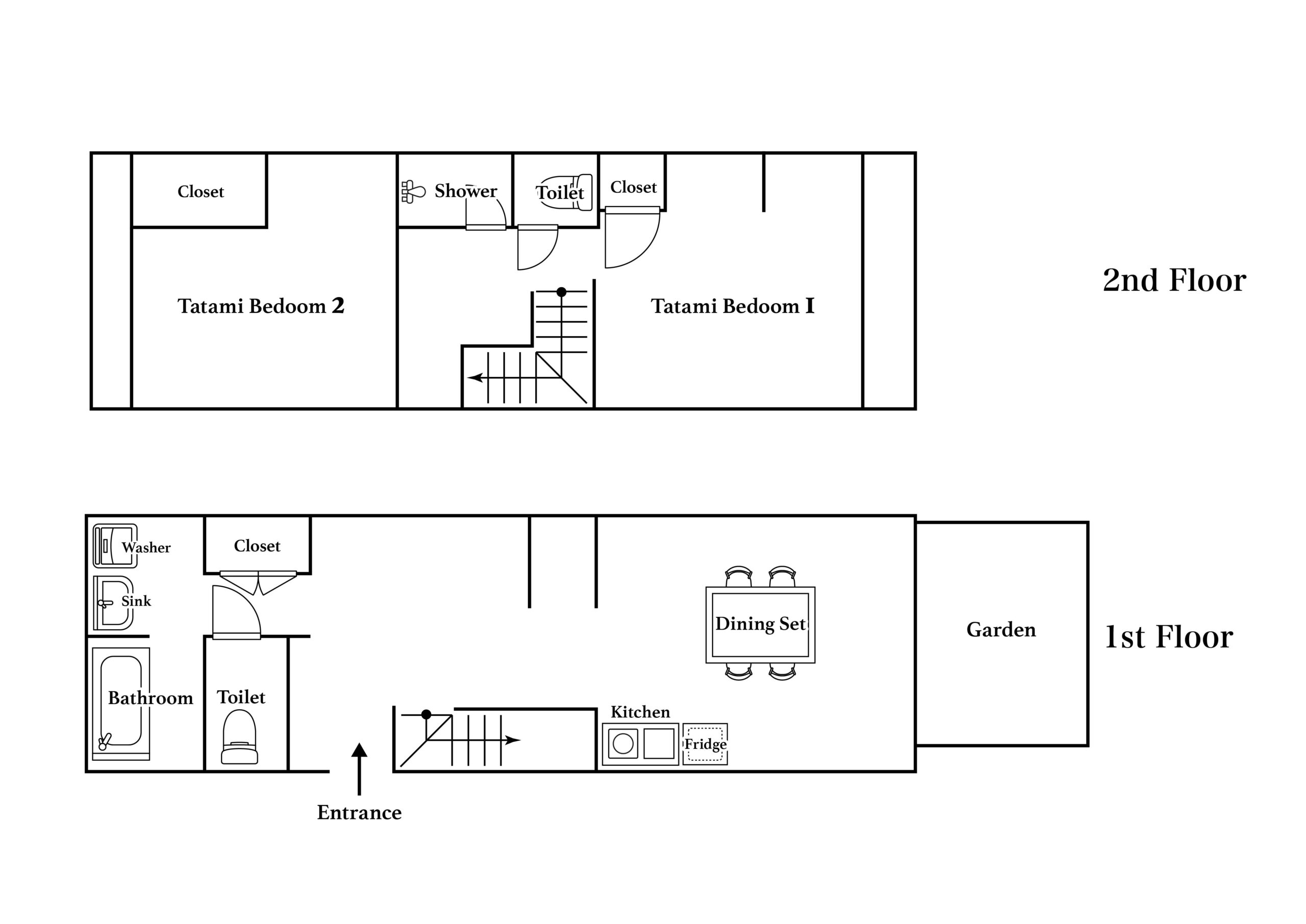
・ 最大6名まで対応可能な一棟貸し宿
・ 京都市内への優れたアクセス
・ 和とモダンが調和した落ち着いたデザイン

【設備・アメニティ】
Wi-Fi/テレビ/エアコン(冷暖房・ヒーター)/浴室(バスタブ付き)/シャワールーム/独立トイレ×2/簡易キッチン/冷蔵庫/電子レンジ/ポット/洗濯機(バルコニー)/食器類/掃除機/畳スペース/ダイニングエリア
【定員・清掃料】
定員:6名様(1名様より貸切可能)
清掃料:一律 10,000円
【アクセス】
〒600-8362 京都府京都市下京区大宮通五条下る堀之上町505番地2
JR 丹波口駅: 徒歩 約11分(距離 約800m)
【補足】
本施設は、簡易宿所営業許可を取得した一棟貸し宿です(年間365日運営)。
法令に基づく安全基準を満たし、年間を通して安心してご滞在いただけます。
【ブランドメッセージ】
Sanjusan(サンジュウサン)は、
“33”のロゴに込めた京都・三十三間堂の精神を受け継ぎ、
伝統と環境の調和を大切にした一棟貸し宿を運営しています。
静けさとゆとりの中で、
旅の記憶に残る「京都で暮らす」ひとときをお届けします。
【アクセス】
〒600-8362 京都府京都市下京区大宮通五条下る堀之上町505番地2
JR 丹波口駅: 徒歩 約11分(距離 約800m)
掲載情報は現在の周辺地図に基づいたものであり、内容を保証するものではありません。必ず現地の最新情報をご確認ください。