Sanjusan HOSHI ― 伝統とモダンが調和する一棟貸し宿。
京都駅徒歩圏。名所と食の楽しみが広がる、光と静けさの宿。
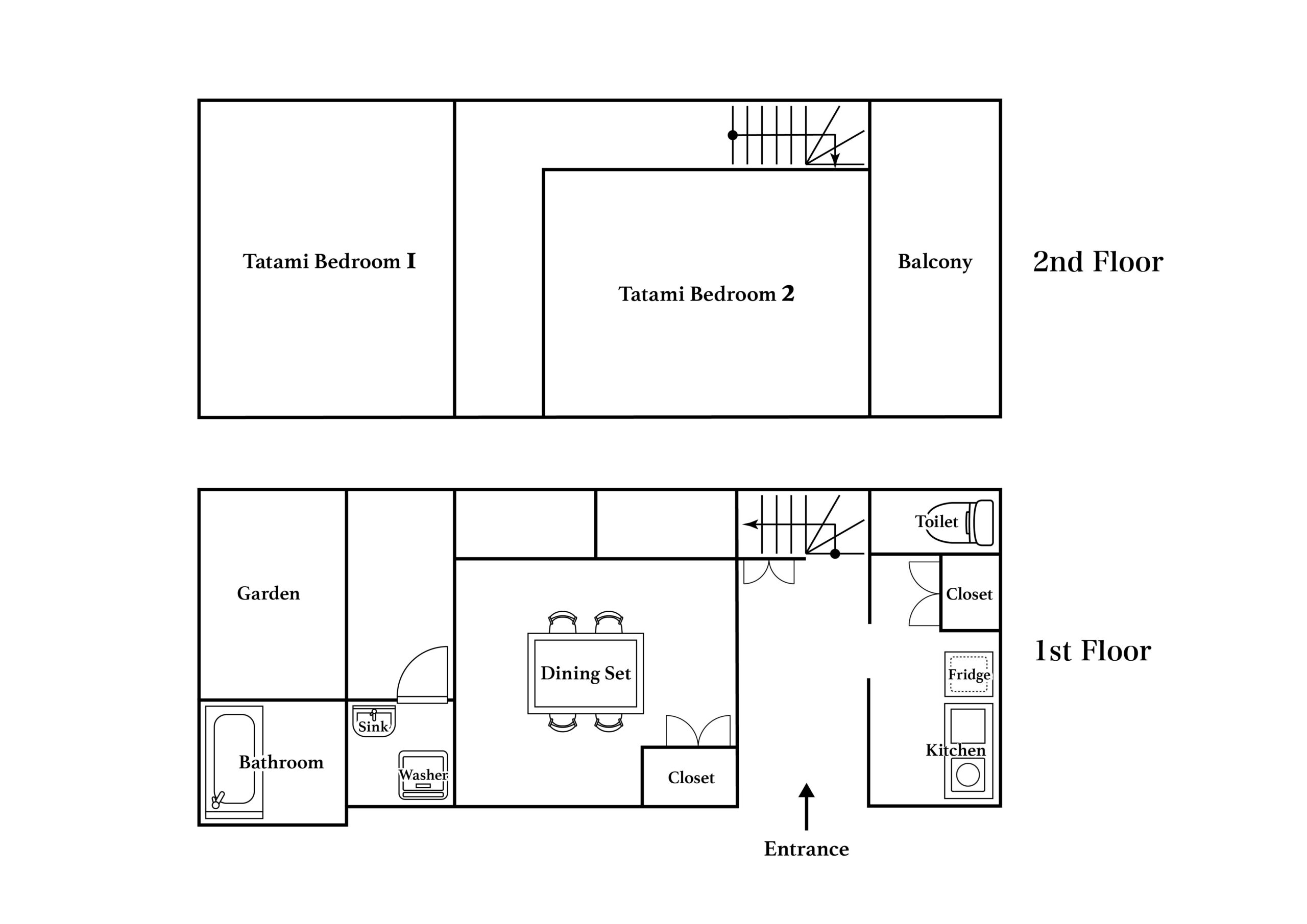
Sanjusan HOSHIは、京都の中心・下京区に佇む二階建ての一棟貸し宿です。
周囲には三十三間堂をはじめ、飲食店やショップなど京都らしい街並みが広がり、観光・食・文化のすべてを徒歩圏で楽しめます。
一階には畳のリビング、浴槽付きのバスルーム、独立トイレ、キッチンを備え、二階には5名まで宿泊可能な畳部屋を2室ご用意。
和の静けさとモダンな快適さが調和した、落ち着きある町家空間です。
